Ref. V01196
Neubau mit Grundstück am Fuß des Calvari Berg

1.290.000€

Felanitx
250m2
Wohnfläche
4
Zimmer
4
Badezimmer
1
Parkplatz

Pool
539m2
Grundstück
Neubau mit Grundstück am Fuß des Calvari Berg
Felanitx / Mallorca

Neue Baugenehmigung erteilt!

 

539m2 Eckgrundstück, in einer ruhigen Gegend gelegen, am Rande des Dorfes, nur 5 Minuten zu Fuß zum Zentrum der Stadt.

Es hat einen spektakulären Blick auf die Berge vom "Calvari" und  "Sierra de Tramuntana" 

 

Nur das Grundstück mit Lizenz 385.000€.

Grundstück mit fertigem Haus 1.290.000€ 

 

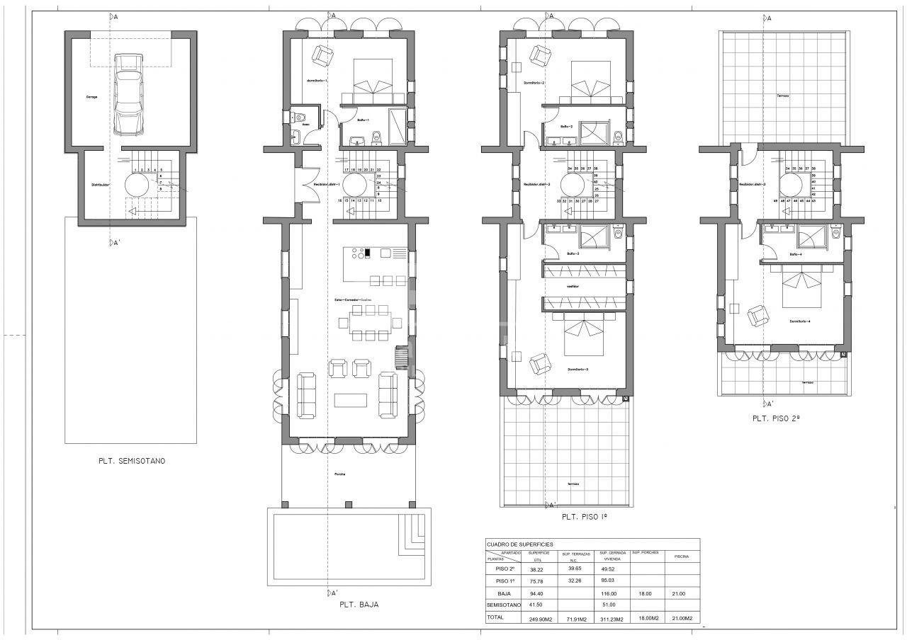
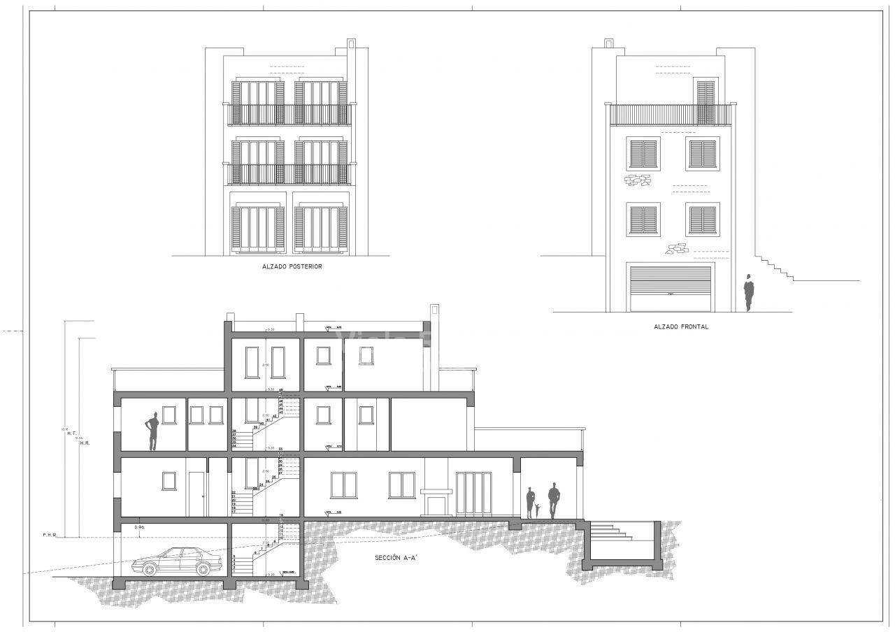
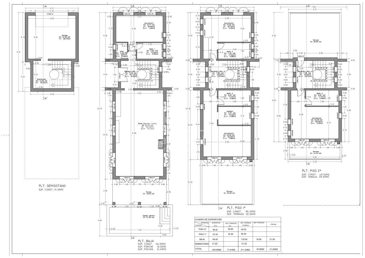
Das Projekt beschreibt ein freistehendes Haus von etwa 250m2, 3 Etagen und ein Keller mit Garage.

Im Erdgeschoss von 95m2 gibt es eine Eingangshalle, ein Wohnzimmer mit offener Küche, und ein Schlafzimmer mit Bad.

Der Außenbereich besteht aus einer überdachten Terrasse von 18m2, ein Solarium Bereich und ein Schwimmpool von 21m2.

Auf der ersten Etage von 76m2 gibt es zwei Schlafzimmer mit en-suite Badezimmern. Einer von ihnen mit Zugang zu einer Terrasse von 33 m2.

Auf der zweiten Etage von ca. 40m2 gibt es ein Studio-Schlafzimmer mit einem Bad und einer Terrasse von ca. 13 m2.

Das Untergeschoss von ca. 28 m2 ist als Garage mit Zugang zum Erdgeschoss des Hauses.


Es wird eine Fußbodenheizung installiert.

Die Innenböden werden mit glasierten Keramikfliesen und die Wände und die Fassade mit Naturstein verlegt.

Anpassungsoption: Da die Bauarbeiten noch nicht begonnen haben, kann der künftige Eigentümer einige Details des Projekts anpassen, um einen Raum nach seinem Geschmack zu gestalten. Zusätzliche Änderungen können je nach Verfügbarkeit und Budget vereinbart werden.

Das Projekt wird voraussichtlich in etwa eineinhalb Jahren abgeschlossen sein.

 

hola
Sie möchten mehr Informationen
Über diese Eigenschaft
Ähnliche Immobilien
Mallorca