Ref. V00983
 Casa de pueblo con proyecto

268.000€

Felanitx
226m2
Construidos
3
Habitaciones
2
Baños
0
Plazas de Parking

Piscina
144m2
Terreno
 Casa de pueblo con proyecto
Felanitx / Mallorca


Como muchas casas antiguas en Felanitx, tienen su encanto y pueden ser renovadas  para conservar su antiguo carácter. Este tipo de propiedad suele tener varias habitaciones pequeñas que se pueden convertir en habitaciones amplias y luminosas después de la renovación, como es el caso de los planes actuales.
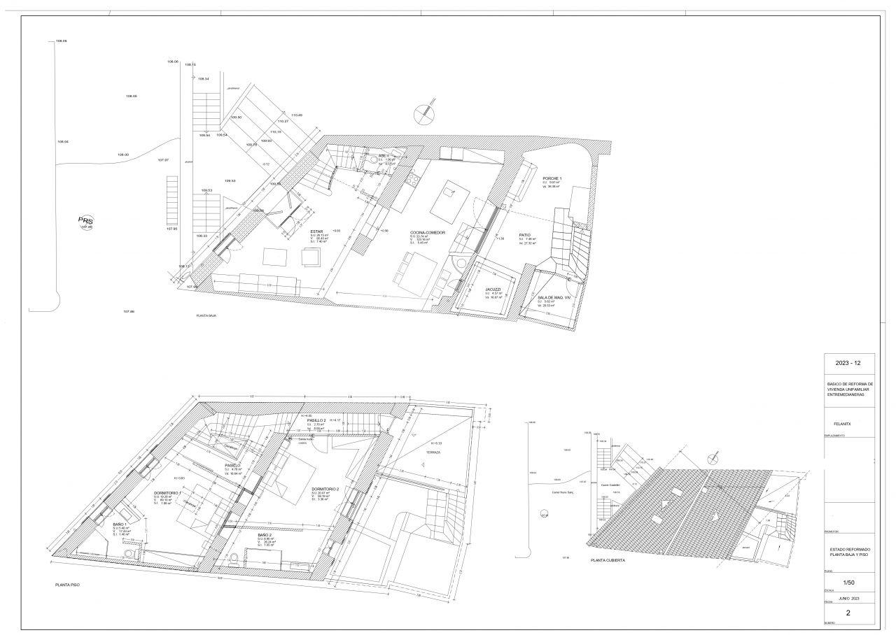
El proyecto está disponible y la solicitud de construcción ya se presentó en el 06/2023.
Los planos prevén lo siguiente: 
La planta baja se convertirá en un gran espacio de aproximadamente 110 m², que incluye la sala de estar con escalera de acceso a la primera planta, el aseo de invitados, la cocina con comedor, con vistas al exterior y  al patio. 
El patio tiene unos 30 m² y cuenta con una acogedora bóveda de piedra original de Marés ,una pequeña piscina (jacuzzi) y la sala de máquinas. Hay una escalera exterior que conduce desde el patio a la terraza soleada de la primera planta.
En la primera planta hay dos amplios dormitorios con baño, uno de unos 50 m² y el otro de unos 45 m². Desde la primera planta se accede a la terraza solarium de unos 15 m² y desde aquí se llega al patio interior a través de una escalera exterior.
Superficie de parcela de 144 m² según catastro y los metros construibles según proyecto son 226 m².
Salón, comedor, cocina
2 dormitorios
2 cuartos de baño
1 aseo de invitados
Patio con piscina (jacuzzi)
1 terraza 

hola
Recibir Información
Sobre este inmueble
Propiedades relacionadas
Mallorca
338m24 Habitaciones2 Baños

575.000€