Ref. V00334
TERRENO CON PROYECTO Y LICENCIA EN SANTANYÍ

A CONSULTAR

Santanyi
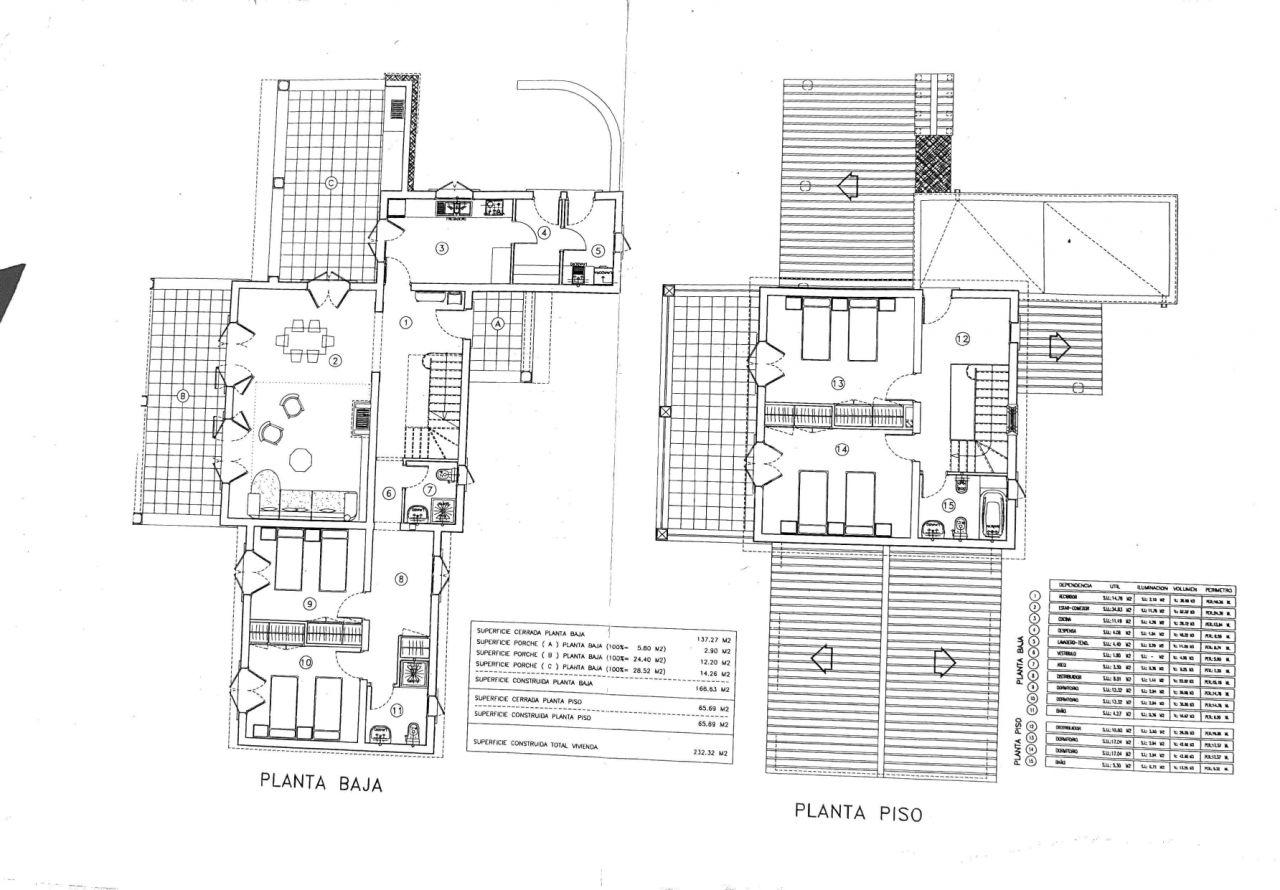
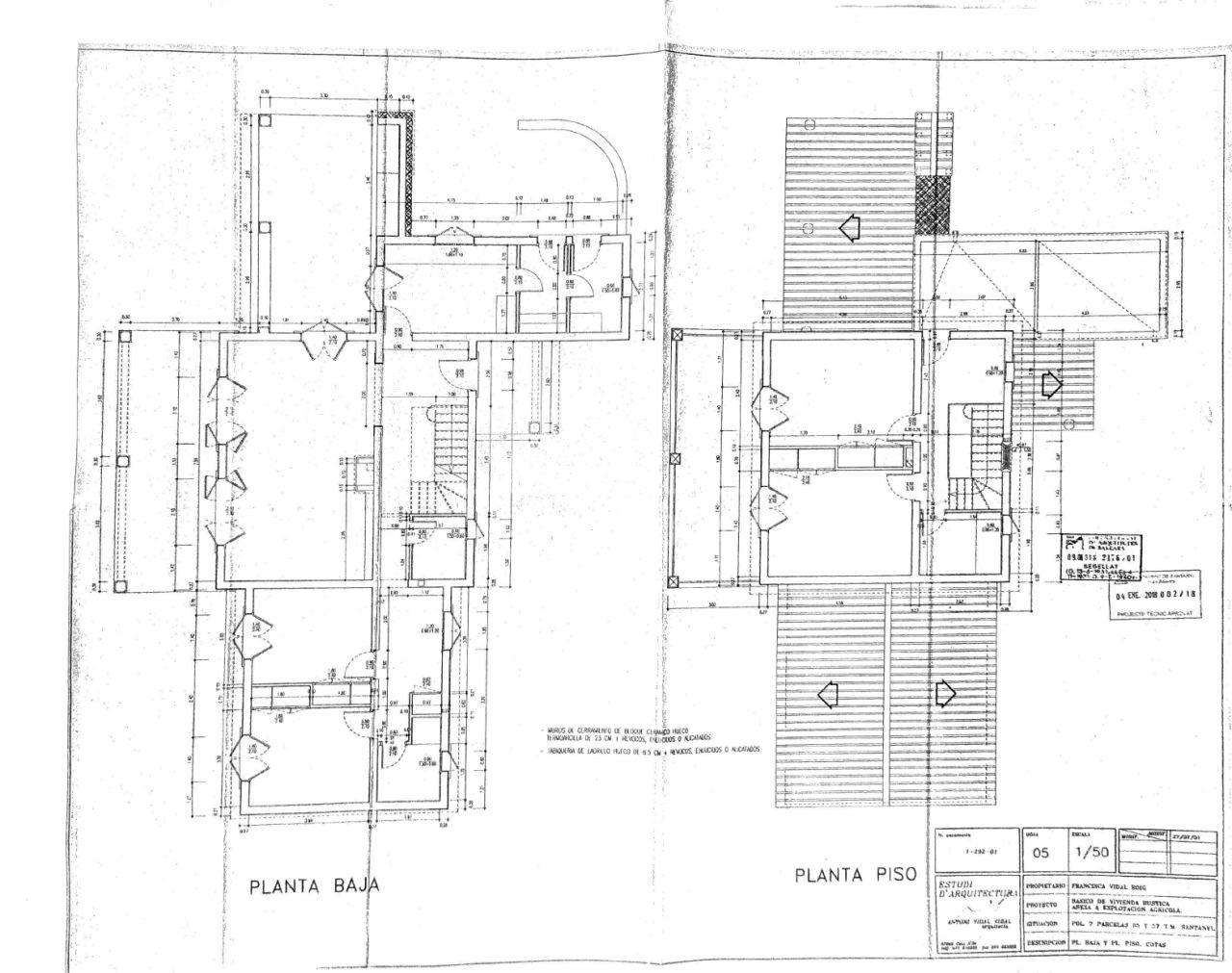
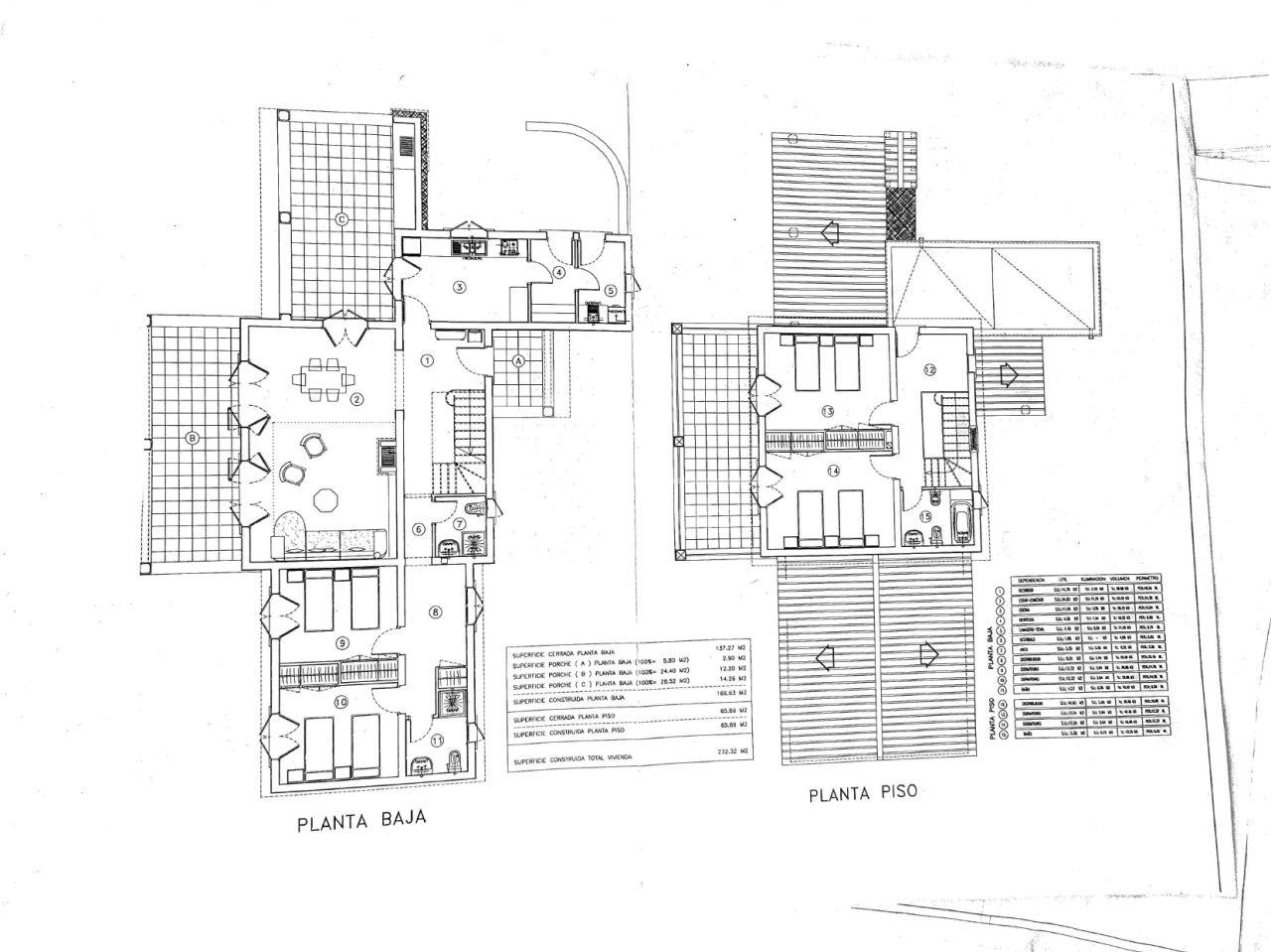
232m2
Construidos
4
Habitaciones
3
Baños
2
Plazas de Parking
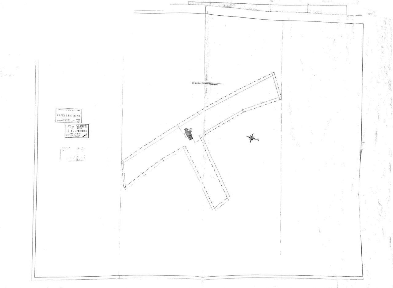
17269m2
Terreno
TERRENO CON PROYECTO Y LICENCIA EN SANTANYÍ
Santanyi / Mallorca

Terreno de 17.269 m2 aprox. a 1Km. del pueblo de Santanyí con proyecto y licencia de construcción aprobado.

Bonitas vistas a la iglesia de Santanyí y a las montañas.

Camino de acceso al terreno asfaltado.

Totalmente cerrado de pared de piedra.

Luz y agua tiene .

El proyecto es para construir una casa de 2 plantas y de aprox 232m2

La planta baja tiene aprox 166 m2 ,Consta de 2 dormitorios , 2 baños, y cocina con coladuria.

Hay salón comedor con salida a la zona exterior de terrazas.

En la primera planta  de aprox 65 m2 encontramos 2 habitaciones con terraza y 1 baño.

hola
Recibir Información
Sobre este inmueble
Propiedades relacionadas
Mallorca