Ref. V01063
21,240 m² Plot with Basic Project in Manacor

300.000€

Manacor
424m2
Built
4
Rooms
4
Bathrooms
0
Parking Spaces

Pool
21240m2
Ground
21,240 m² Plot with Basic Project in Manacor
Manacor / Mallorca

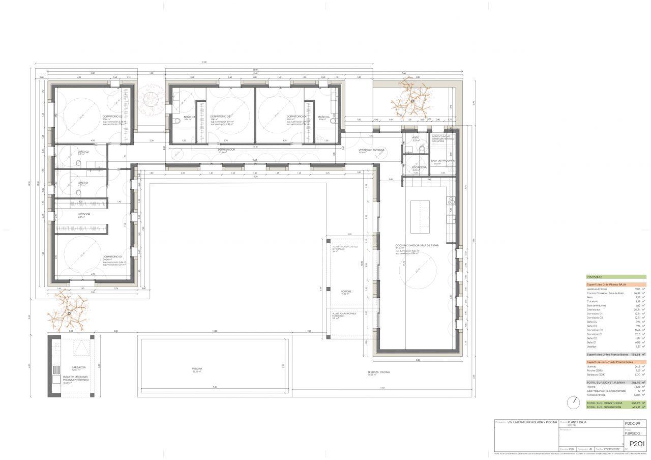
21,240 m² Plot with House and Pool Project in Manacor

Magnificent 21,240 m² rustic plot for sale with a submitted building project currently awaiting planning permission (filed in January 2022).

There is also the possibility of purchasing the property with the construction completed, under prior agreement and conditions to be negotiated.

Project: Detached Single-Family Home with Pool

The project includes:

  • Detached single-family house

  • 33 m² swimming pool

  • Entrance hall

  • 4 spacious bedrooms

  • 4 full bathrooms

  • 1 guest toilet

  • 53 m² open-plan kitchen and dining area

  • Utility/laundry room

  • Porch of approx. 9 m²

  • 36 m² terrace

  • 6 m² barbecue area

Utilities

  • Electricity connection at the edge of the plot

  • Well license granted (final confirmation pending). The well location is already marked and ready for execution.

hola
Receive information
About this property
Similar properties
Mallorca