Ref. V00893
Grundstück mit Projekt in Felanitx

AUF ANFRAGE

Felanitx
225m2
Wohnfläche
3
Zimmer
2
Badezimmer
2
Parkplatz

Pool
15936m2
Grundstück
Grundstück mit Projekt in Felanitx
Felanitx / Mallorca

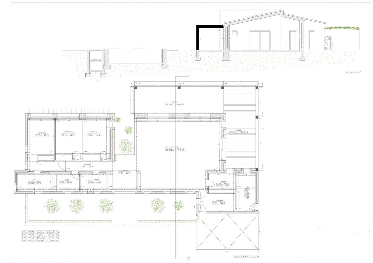
Grundstück von ca. 15.936 m2 mit Projekt in "Son Valls" (Felanitx) mit schöner Aussicht auf "San Salvador". 

Es liegt ein Basisprojekt vor, das den Bau eines Hauses von ca. 225 m2 auf einer Etage ermöglicht.

Das Haus hat einen Eingang mit einer großen Halle, eine geräumige Küche mit Speisekammer und eine Waschküche.

Wohn-Esszimmer mit Zugang zu einer überdachten Terrasse und zum Garten und Poolbereich. Der Swimmingpool ist ca. 21m2 groß.

Es gibt 3 Doppelschlafzimmer, ein Einzimmerappartement und zwei komplette Badezimmer mit Dusche und Badewanne,

In 700m Entfernung zum Grundstück befindet sich eine Zähleranlage des Stromanbieters, aber es wird empfohlen, Solarenergie zu installieren. 

Wasser mi Brunnen und steinwende.

 

hola
Sie möchten mehr Informationen
Über diese Eigenschaft
Ähnliche Immobilien
Mallorca