Ref. V00332
GRUNDSTÜCK MIT PROJEKT IN SANTANYÍ

AUF ANFRAGE

Santanyi
330m2
Wohnfläche
4
Zimmer
3
Badezimmer
2
Parkplatz

Pool
16600m2
Grundstück
GRUNDSTÜCK MIT PROJEKT IN SANTANYÍ
Santanyi / Mallorca

Grundstück von 16.600 m2 mit schöner Aussicht nur wenige Minuten vom Dorf Santanyí.

Vollständig mit Steinmauer umschlossen.

Das Bauprojekt wurde von der Conselleria genehmigt, der Antrag auf Baugenehmigung steht noch aus.

Möglichkeit von Strom und Wasser.

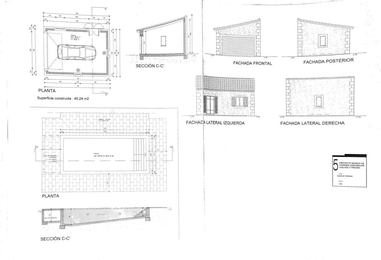
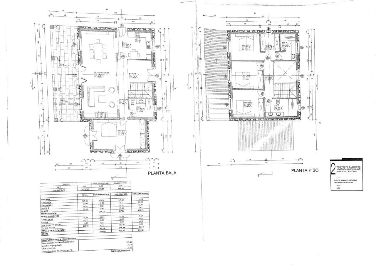
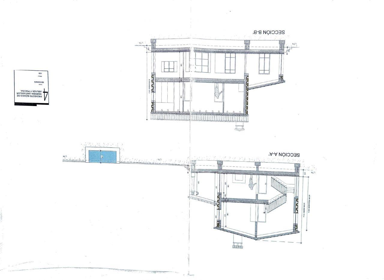
Nach den Plänen ist ein Bau eines freistehenden Hauses mit 2 Etagen geplant, mit einer ungefähren Größe von 224m2.

Das Erdgeschoss von ca. 125m2 wird eine große Eingangshalle, 1 Schlafzimmer und ein Badezimmer haben. Ein Wohn-Esszimmer mit Zugang zu einer Veranda von ca. 10m, im Garten und Poolbereich. Alle Zimmer werden große Fenster haben.

Die erste Etage von ca. 99 m2, wird 3 Schlafzimmer und 2 Bäder haben.

Im Außenbereich finden wir eine überdachte Garage von ca. 45 m2 und ein Schwimmbad von ca. 40 m2 mit Gartenbereich.
 

hola
Sie möchten mehr Informationen
Über diese Eigenschaft
Ähnliche Immobilien
Mallorca