Ref. V00172
LandHaus mit schöner Aussicht in der Nähe von Felanitx

630.000€

Felanitx
165m2
Wohnfläche
3
Zimmer
2
Badezimmer
1
Parkplatz

Pool
30000m2
Grundstück
LandHaus mit schöner Aussicht in der Nähe von Felanitx
Felanitx / Mallorca

Grundstück in einer ruhigen Gegend  "Son Nadal", in der Nähe von Felanitx mit autochthoner Vegetation und Blick auf San Salvador.

Nur 5 Minuten durch asphaltierte Straße zur Hauptstraße.

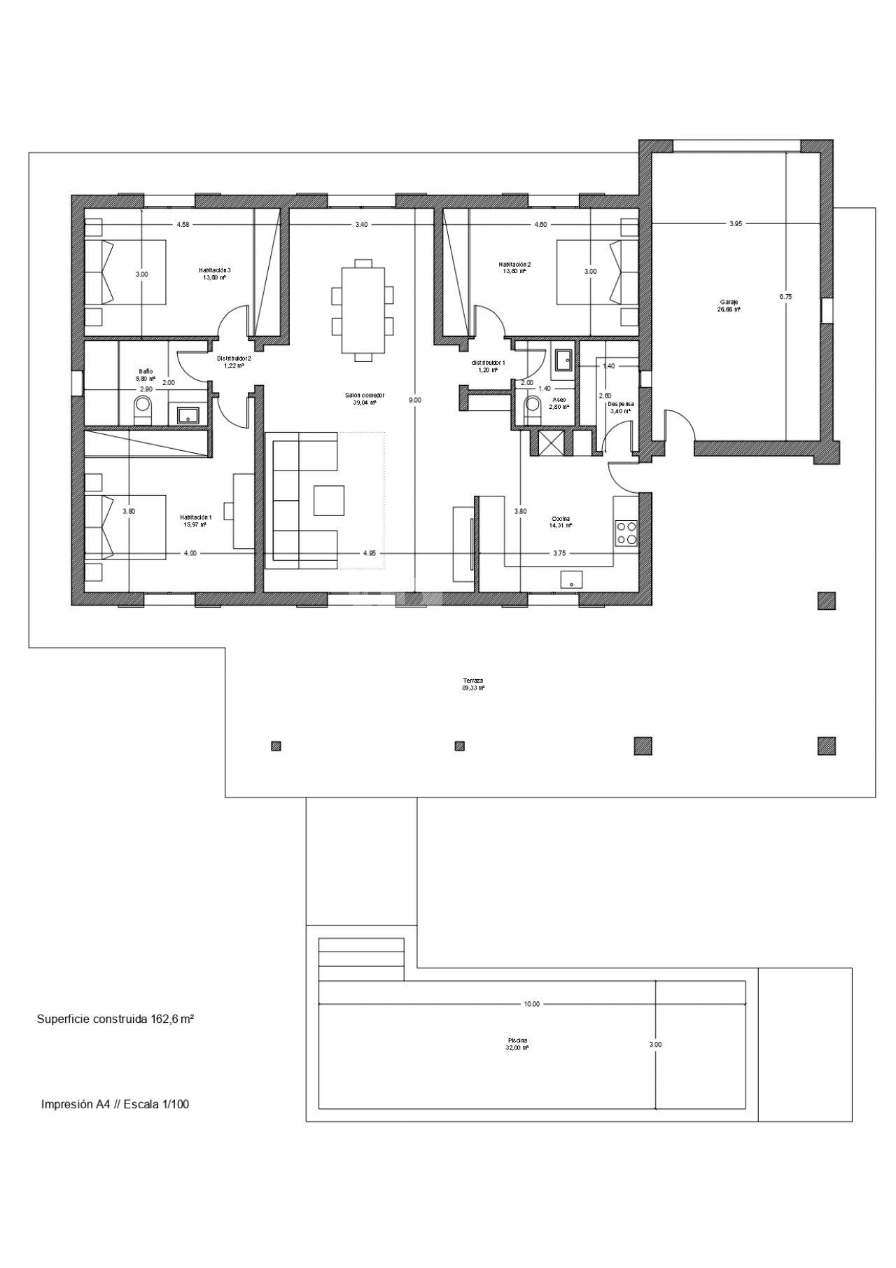
Es hat ca. 30.000 m2 in drei Parzellen, mit ein Haus von ca. 156,79 m2 alles in einer Etage gebaut.

 

Das Projekt beschreibt ein Haus von etwa 165m2 im Erdgeschoss.

Es hat eine Küche mit Speisekammer und ein Wohn-Esszimmer mit einer überdachten Außenterrasse von ca. 90 m2.

Es gibt 3 Schlafzimmer, ein Badezimmer und ein WC.

Alle Schlafzimmer haben Zugang zum Außenbereich.

Es gibt einen Swimmingpool von ca. 3 x 10 Metern mit Gartenbereich.

Eine Garage von ca. 27 m2 mit direktem Eingang zum Haus.

Vorinstalliert mit Heizung und Klimaanlage. 

Strom- und Wasseranschluss vorhanden.

Preis mit fertigem Haus 1.050.000€.

hola
Sie möchten mehr Informationen
Über diese Eigenschaft
Ähnliche Immobilien
Mallorca
388m27 Zimmer3 Badezimmer

950.000€